てまり不動産

  • てまり不動産
  • 不動産を
    買いたい
  • 不動産を
    売りたい
  • 家づくり
    相談
  • 空き家
    相談
  • 0263-31-6624 営業時間 9:00~18:00
    定休日 水曜日
    会社案内
  • お問い合わせ
  • プライバシーポリシー

不動産を買いたい

TOP > 不動産を買いたい > 物件詳細

新築住宅

◎オール電化新築住宅◎◎子育て世代の方にもオススメな物件です♪◎ランドリールーム、一階主寝室にはW.I.C付き等暮らしのアイデアを盛り込んだ物件です♪是非、現地でご覧ください。◎駐車場3台

所在地 諏訪市高島3丁目
価格 4400 万円
土地面積公簿  257㎡ (77.74坪)
間取り3LDK
建物面積102.68㎡(31.06坪)

成田(なるた)

担当者より

◎お客様に合った資金計画のご提案、住宅ローン関係(毎月の返済額や借入先の金融機関の選択)もお手伝いさせていただきます♬
相談無料です。お気軽にご相談ください♪

◎弊社ホームページも是非ご覧ください♪
◎URL https://temari-estate.com

《 見学について 》
◎見学は無料です。是非、お気軽にお問い合わせ下さい♪
◎土日祝日、対応致します♪平日のご案内も大歓迎です!
◎ご案内希望・物件についてのお問い合わせは、下記のお問い合わせフォーム、又はお電話・メールにてお気軽にご相談下さい♬
◎建築中の物件の場合は、弊社で物件のご説明や同仕様の建物のご案内を致します。
◎小さなお子様がいらっしゃるご家族様へ。
弊社店舗には、キッズスペースがありますので安心してご相談いただけます♪

外構イメージ

外構イメージ

キャンペーンのご案内

キャンペーンのご案内

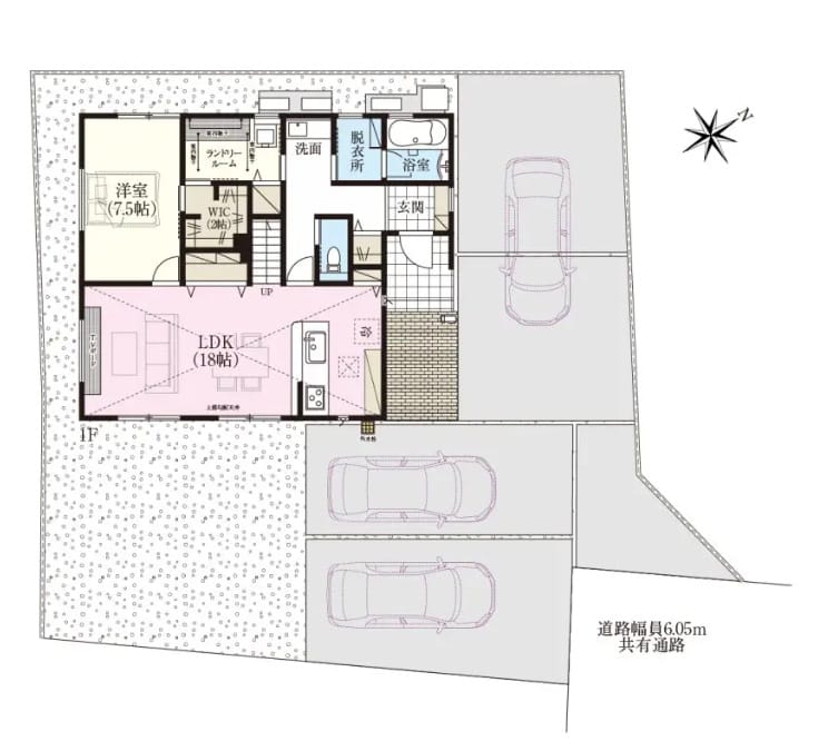
一階間取図

一階間取図

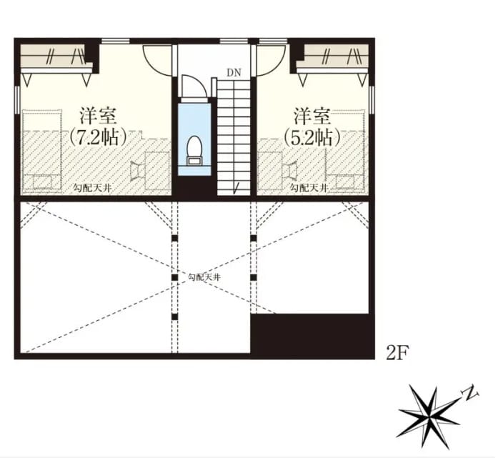
二階間取図

二階間取図

配置図

配置図

省エネ性能ラベル

省エネ性能ラベル

区画図

区画図

案内図

案内図

/

所在地 諏訪市高島3丁目 建物名 スマート・ワン・シティ諏訪市高島3丁目 5号棟 
価格 4400万円 消費税内税額
土地面積 公簿  257㎡ (77.74坪) 建物面積 102.68㎡(31.06坪)
間取 3LDK 構造 木造
詳細間取 LDK18帖、洋室7.5帖、洋室7.2帖、洋室5.2帖 その他一時金
総階数 2階  完成年月 2026年5月
湯権 下水道 公共下水道
通学区 諏訪市立城南小学校 (1000m)
諏訪市立諏訪中学校 (1600m)
引渡/入居日 相談
手数料 要 私道負担面積
接道状況 方角:東 道路幅員:7m 公私区分:公道 
設備 システムキッチン・カウンターキッチン・IHクッキングヒーター・浄水器・食器洗浄乾燥機・火災警報器(報知機)・TVモニタ付きインターホン・シャッター雨戸・温水洗浄便座・バス1坪以上・追焚機能・暖房便座・トイレ2箇所・BT別室・バルコニー・エアコン・ウォークインクローゼット・24時間換気システム・オール電化・省エネラベル・建築確認完了検査済証・上水道・給湯・洗髪洗面化粧台・照明器具付き・電気・下水道・複層ガラス・駐車場3台分
駐車場 有  3台可 
施工会社 ㈱ヒノキヤグループ 桧家住宅カンパニー
交通 電車: 中央本線上諏訪駅 距離1700m 徒歩22分 
備考 《 別途諸費用 》
〇固定資産税等(日割り計算)
〇登記関係費用
〇仲介手数料
〇印紙代
〇火災保険
〇不動産取得税等がかかります。

《 備考 》
〇3・4・5号棟の共有通路(幅員6.05m)、1号地・6号地の給排水引込みの為の地役権を設定しています。
管理番号 取引態様 一般媒介
最終更新日 2026-01-29
資料を印刷する

マップ

※物件位置が表示されていない場合もあります。 正確な位置は取り扱い会社へお問い合わせください

大きな地図で見るopen_in_new

物件のお問い合わせ

物件情報 物件番号:449589 / 新築住宅 / 諏訪市高島3丁目 / 価格:4400万円
お名前 必須
フリガナ 必須
電話番号 必須
FAX
※FAXで資料送付をご希望の方は、必ず入力してください。
メールアドレス 必須
お問い合わせ種別



連絡希望時間帯
資料送付先 郵便番号 
住所 
※郵送で資料送付をご希望の方は、必ず入力してください。
ご質問内容

個人情報のお取り扱いについて確認の上送信ください

※お使いのメールサービス、メールソフト、ウィルス対策ソフト等の設定により「迷惑メール」と認識され、メールが届かない場合があります。 (特にGmailやYahoo!メールなどのフリーメールをお使いの方)
その場合は「迷惑メールフォルダー」等をご確認いただくか、お使いのサービス・ソフトウェアの設定をご確認ください。

てまり不動産

てまり不動産

〒399-0001 長野県松本市宮田10-3
TEL 0263-31-6624
FAX 0263-31-6719

  • 不動産を買いたい
  • 不動産を売りたい
  • 家づくり相談
  • 空き家相談
  • 会社案内
  • お問い合わせ
  • プライバシーポリシー

© 2026 てまり不動産.

お問い合わせ

お電話でのお問い合わせ 0263-31-6624 営業時間 9:00~18:00
定休日 水曜日
メールでのお問い合わせ
トップへ戻る